1. <dir id="mSLL8A"><q id="mSLL8A"></q></dir>

        Hello! Welcome to Jiangsu Zhongwei Measurement and Control Instrument Co., Ltd.

        The remote type double rotor flowmeter

        13遠傳型雙轉(zhuan)子流量(liang)計(ji).png
        • 13遠傳型雙轉(zhuan)子流量(liang)計(ji).png
        ZW-LXZ series The remote type double rotor flowmeter Is a volume flow measurement device, designed f…

        Description:

        Productoverview:

        ZW-LXZ series The remote type double rotor flowmeter Is a volume flow measurement device, designed for accurate measurement of oil liquid products in the field of application. The double shell flowmeter has the durability and long service life, and the traditional double rotor flowmeter to improve the accuracy, the pulse output and the current cutting-edge equipment connected with zui. Mainly by the measurement of spiral shell, rotor, transmission parts and indicating part, has large measuring range, high accuracy, small pressure loss, viscosity adaptability, stable operation without pulsation, easy installation etc.; site indicate the volume volume, instantaneous flow, output pulse, 4-20mA signal, remote measurement and control.

        Two, structure principle:

        1, principle:

        ZW-LXZ series The remote type double rotor flowmeter Is completed in the measurement chamber for measurement of fluid flow. A pair of spiral rotor rotating in the liquid under the pressure of a closed space is formed between the rotor and the measurement of cavity wall (Figure shadow) of each rotary a shadow volume discharge 8 times. According to this relationship, as long as the measurement of rotating frequency, we can calculate the flow accumulation, according to the second revolution, it can be used to measure the instantaneous flow.

        2, structure:

        Double rotor flowmeter is mainly composed of a casing, a pair of spiral rotor, magnetic coupling, reducer, gear adjustment, counter and signaling device. The body is divided into flowmeter monomer and dimer monomer is two. The shell and the box flowmeter as a whole; the shell and the two meter catamaran. The spiral rotor speed reducer. The mechanism of magnetic coupling and a series of gears, to meter counter. The magnetic coupling is mainly composed of a driving magnet and the driven magnetic steel. The magnetic coupling flowmeter can improve the working pressure and temperature, safe operation, convenient maintenance.

        Third, application:

        ZW-LXZ series remote type double rotor flowmeter is used in pipeline liquid flow measurement and control instrument. Widely used in petroleum, chemical, metallurgy, electric power, transportation, shipbuilding, oil depots, docks, tankers and other departments, especially for the measurement of crude oil, refined oil, flowmeter in light hydrocarbon and other industrial liquids can be directly read the instructions, word and dispensing hearing, output electric pulse signal transmitted to the secondary instrument or computer composition, automatic control, automatic detection and data processing system.

        Fourth, the main features:

        1, high accuracy, good repeatability, stable operation, no pulsation and long service life;

        For straight section 2, flow meter and no small installation space;

        3, the flow is not affected by the accuracy of impact pressure and flow changes, stable performance;

        4, with the temperature and pressure sensor, the gas temperature and pressure compensation;

        5, with the pulse signal, analog signal, and can realize the centralized management of computer real-time data through the RS485 communication interface;

        6, low power consumption, by battery power supply, also can be an external power supply;

        7, a special high resolution liquid crystal display, intuitive and convenient reading.

        Fifth, technical parameters:

        1, can be measured in liquid petroleum, petroleum products, chemical medium etc.;

        2, nominal diameter (mm) of 10, 15, 25, 40, 50, 80, 100, 150, 200, 250, 300;

        3, accuracy (%) 0.1, 0.2, 0.5;

        4 0.4-3 mPa.s <40KPa, pressure loss;

        5 working pressure (MPa), 1.6, 2.5, 4, 6.3;

        6, the temperature range (c) -20 ~ +60, -20 ~ +120, +100 ~ +200, +150 ~ +250;

        7, the level of protection IP65;

        8, the ambient temperature (-30 ~ +70 C);

        9, medium viscosity (0.32 ~ 1000mPa.smPa.s);

        Six, installation requirements:

        1, environmental conditions: no corrosive fluids, small mechanical vibration, less dust and place away from heat. For a volume correction instrument of intelligent flowmeter, should also comply with the provisions of the environment.

        2, the ambient temperature: not more than -20, the range of +8O DEG C.

        3 conditions: in the installation of pipeline flowmeter before pipeline should be cleaned and purge, remove all debris, rust and dirt. Connecting pipe should be in accordance with the import and export of the same caliber flowmeter axis, may not have bulges protruded convex wall in the pipeline. Flow meter should take the stress free installation, considering pipe work caused by temperature stress.

        As a new type of flowmeter, only to meet the conditions and according to the requirements of the correct use, can make use of the ideal price, prolong the service life. Therefore must pay attention to the following 3 problems in the selection and use of.

        1, because the single shell structure, Zui high pressure is higher than that of 2.0MPa, so is the use of high-pressure long pipeline transportation.

        2, non consecutive occasions when used again, must from the exhaust hole net metering cavity air to prevent cavitation caused by measuring error increases and graphite bearing damage.

        3, the rotor clearance is not higher than 0.2 m, and the medium in the metering chamber to travel longer, the medium purity requirements than other volumetric flowmeter, requiring the use of not less than 40 to the stainless steel filter and regular cleaning. The rotor is cast iron, medium water requirement rate is less than 5%, otherwise it will affect the use of corrosion.

        Seventh, installation notes:

        1, the installation direction should be the direction of the arrow shown on the instrument shell and liquid flow in the same direction, the installation position should pay attention to reading

        2, try to install instruments in normal occasions, do not install in harmful gases and strong thermal radiation situations, to prevent damage to the counter part of instrument.

        The rotor shaft 3, the instrument as much as possible to install the horizontal position, the dial should be installed into the vertical position ("0" in the above indexing), to reduce the friction between the gear and the shell, reducing the wear of parts. Due to the different installation positions, in order to facilitate the reading, the counter (header) rotating 90 degrees or 180 degrees. Electronic meter installation with vertical installation, head of state and at right angles to the body, easy to read.

        Before installation, 4 meters, the pipeline must be cleaned thoroughly in the piping system, if there is no strict filtering device, filters should be installed in the instrument, to prevent impurities from entering the table.

        5, should be installed in the pump outlet, the flow control valve should be installed in the instrument downstream, when used to open the upstream valve, then slowly open the downstream flow regulating valve or. Is suddenly turned on or off.

        6, in the use of instruments, should be full of liquid flow in the table. Tested in vivo should not be mixed with gas, mixed volume measurement not otherwise measured air and liquid. The liquid is mixed in the gas must be installed in the instrument before gettering.

        7, the flow of the pipeline should not dramatically increase or decrease, should be avoided and pressure piping vibration, hydraulic shock volatility phenomenon, otherwise it will affect the normal work of instruments.

        8 Z, the flow exceeds the specified flow is large, with double rotor speed of wear increases, and the pressure loss increased sharply, should avoid the use of less than Z, small flow, still can measure, but the error increases, the starting flow flowmeter is about Zui high flow 3%, normal work flow for the Z flow of 70%-80%.

        9, for the measurement of high viscosity liquid, generally the liquid is heated to reduce viscosity, and flow in the pipe, when the instrument is disabled, liquid cooling instrument filled with the variable viscosity, such as to enable, must use steam or thermal oil in the body, the external heating liquid red hot method for liquid viscosity the instrument can be used after reduced. Otherwise the viscosity will bite the transmission parts, resulting in damage to the instrument.

        10, the measured liquid temperature should not exceed the specified value, even more than the instrument gets stuck.The additional error can also cause changes in the temperature of the liquid viscosity influence. In addition, the temperature also caused an increase in spiral space volume increased, the instrument "go slow",

        11, each meter factory, with diesel at room temperature under normal temperature calibration, oil density: 0.84M3/KG, such as liquid viscosity users and this difference is larger, can exchange the double gear or adjust the instrument coefficient to correct the error.

        12, prohibit the use of steam and water by purging instrument.

        Eight, structure and dimensions:

        1, rotor structure

                              

        Rotor assembly

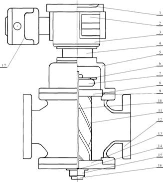
        2, the overall structure of intelligent meter

                      

        The overall structure of intelligent meter:

        Note: 1, 2., 3. and two times the battery meter table 4. connecting seat type 5.U 6. - 7. cap positioning 9.O type ring gear 8. on the cover 10. 11. 12. 13. of the main rotor shaft, the upper cover 14. thrust bearing 15. adjustment screws 16. bottom cover 17. remote.


        Three Size, see table: 

        entry name

        Nominal pressureMpa

        Size

        Flange size

        Bolt

        L

        D

        H

        H1

        D1

        D2

        D3

        X

        Y

        H

        T

        T1

        Number

        Thread

        ZW-LXZ80

         

        1.6, 2.5

        Three hundred and eighty

        Two hundred and seventy

        Six hundred and ninety

        One hundred and fifty-four

        One hundred and ninety-five

        One hundred and sixty

        One hundred and thirty-five



        Twenty

        Three


        Eight

        Ml6

        4, 6.4

        Three hundred and eighty

        Two hundred and seventy

        Six hundred and ninety

        One hundred and fifty-four

        Two hundred and twenty

        One hundred and seventy-two

        One hundred and forty

        One hundred and twenty-seven

        One hundred and twenty-eight point six

        Thirty

        Seven

        Five

        Eight

        M20

        10, 16















        ZW-LXZ100

         


        Three hundred and eighty

        Three hundred and fifty-two

        Seven hundred and forty

        One hundred and ninety

        Two hundred and thirty

        One hundred and ninety

        One hundred and sixty



        Twenty-two

        Three


        Eight

        M20

        4, 6.4

        Three hundred and eighty

        Three hundred and fifty-two

        Seven hundred and forty

        One hundred and ninety

        Two hundred and sixty

        Two hundred and four

        One hundred and seventy

        One hundred and fifty-seven

        One hundred and fifty-eight point eight

        Thirty-two

        Seven

        Five

        S

        M22

        10, 16















        ZW-LXZ150

         

        1.6, 2.5

        Five hundred and sixty

        Four hundred and twenty

        Eight hundred and forty

        Two hundred and twenty

        Three hundred

        Two hundred and fifty

        Two hundred and eighteen



        Twenty-seven

        Three


        Eight

        M20

        4. 0, 2. 4

        Five hundred and sixty

        Four hundred and twenty

        Eight hundred and forty

        Two hundred and twenty

        Three hundred and thirty

        Two hundred and eighty

        Two hundred and twenty-eight

        Two hundred and sixteen

        Two hundred and seventeen point five

        Thirty-eight

        Seven

        Five

        1 "'

        M24

        10, 16















        ZW-LXZ200

         

        1.6, 2.5

        Seven hundred

        Five hundred and sixty

        Eight hundred and ninety

        Two hundred and forty

        Three hundred and sixty

        Three hundred and ten

        Two hundred and seventy-four



        Twenty-seven

        Three


        Twelve

        M24

        4, 6.4

        Seven hundred

        Five hundred and sixty

        Eight hundred and ninety

        Two hundred and forty

        Three hundred and seventy-five

        Three hundred and twenty

        Two hundred and eighty-four

        Two hundred and fifty-seven point five

        Two hundred and fifty-nine

        Thirty-four

        Seven

        Five

        Twelve

        M28

        10, 16















        ZW-LXZ250

         

        1.6, 2.5

        One thousand

        Seven hundred and twenty

        1100

        Two hundred and seventy

        Four hundred and twenty-five

        Three hundred and seventy

        Three hundred and thirty



        Twenty-nine

        Three


        1 "'

        M24

        4, 6.4

        One thousand

        Seven hundred and twenty

        One thousand and one hundred

        Two hundred and seventy

        Four hundred and forty-five

        Three hundred and thirty-eight

        Three hundred and thirty-five

        Three hundred and twenty-four

        Three hundred and twenty-five point five

        Forty-eight

        Seven

        Five

        Sixteen

        M28

        10, 16















        ZW-LXZ300

        <, >1.6 ,Two point five
        1.6, 2.5

        One thousand

        Seven hundred and twenty

        One thousand two hundred and thirty

        Four hundred

        Four hundred and eighty-five

        Four hundred and thirty

        Three hundred and ninety



        Thirty

        Four


        1.

        M24

        4, 6.4

        One thousand

        Seven hundred and twenty

        One thousand two hundred and thirty

        Four hundred

        Five hundred and twenty

        Four hundred and fifty-one

        Three hundred and ninety-two

        Three hundred and eighty-one

        Three hundred and twenty-eight point six

        Fifty-one

        Seven

        Five

        Sixteen

        M30

        Nine, measuring range:

        LXZ-80

        Eighty

        9~36

        4.5~36

        3.6~36

        3.6~36

        2.8~25

        2.8~25

        4.5~18

        LXZ-80

        20~80

        10~80

        10~100

        10~100

        6.5~56

        6.5~56

        5~40

        LXZ-100

        One hundred

        20~80

        10~80

        10~100

        10~100

        6.5~56

        6.5~56

        5~40

        LXZ-100

        25~100

        13~100

        15~150

        15~150

        8.5~80

        8.5~80

        6.5~55

        LXZ-150

        One hundred and fifty

        25~100

        13~100

        15~150

        15~150

        8.5~80

        8.5~80

        6.5~55

        LXZ-150

        55~225

        30`250

        25~250

        25~250

        18~150

        18~150

        10~100

        LXZ-200

        Two hundred

        55~225

        30`250

        25~250

        25~250

        18~150

        18~150

        10~100

        LXZ-200

        90~360

        50~400

        40~400

        40~400

        28~240

        28~240

        20~160

        LXZ-250

        Two hundred and fifty

        90~360

        50~400

        40~400

        40~400

        28~240

        28~240

        20~160

        LXZ-250

        130~540

        65~540

        60~600

        60~600

        42~360

        42~360

        30~240

        LXZ-300

        Three hundred

        130~540

        65~540

        60~600

        60~600

        42~360

        42~360

        30~240

        LXZ-300

        220~800

        110~900

        95~950

        95~950

        70~600

        70~600

        54~450

        LXZ-350

        Three hundred and fifty

        220~800

        110~900

        95~950

        95~950

        70~600

        70~600

        54~450

        10, encoding selection:

        The basic model

        One

        Two

        Three

        Four

        Five

        Six

        Description (Zhongwei control)

        Nominal diameter

        Counter

        Nominal pressure

        Features

        Transmitter

        working temperature

           ZW-LXZ







        Said: double rotor flowmeter


           Eight






        The nominal diameter of 8mm


           Three hundred and fifty






        The nominal diameter of 350mm



           W





        No message header pulse



           J





        Mechanical counter



           E





        Electronic counter



           H





        Zero mechanical counter




           One point six




        The nominal pressure is 1.6Mpa




           Two point five




        The nominal pressure of 2.5 Mpa




            Four




        The nominal pressure of 4 Mpa




           Six point three




        The nominal pressure of 6.3 Mpa





           Three hundred and four



        The rotor is 304 stainless steel





           Three hundred and sixteen



        The rotor is 316 stainless steel





           C304



        Shell, rotor for 304 stainless steel





           C316



        Shell, rotor for 316 stainless steel






           F


        Pulse output






           I


        4-20 mA output current.







           A

        Working temperature -20~+80







           B

        Working temperature -20~+150







           C

        Working temperature -20~+250







        D

        Working temperature -20~+350

        11, design selection and ordering instructions:

        1, the name and type of flowmeter. Specification and material etc..

        2, medium temperature (c) and pressure (Mpa), flow range (m3/h).

        3, medium viscosity or medium name.

        4, there are no special requirements (such as explosion-proof etc.).

        5, you need a detailed understanding of the product, please call for information.

        6, you need to display instrument Zhongwei control, please refer to the corresponding instructions, the appropriate choice of models or provided by the technical personnel of our company according to your information for your selection.

        Customer service service commitment:

        1, my company sold Zhongwei double rotor flowmeter series product quality problems within twelve months, responsible for free maintenance.

        2, the warranty period if the products of our company have any quality problems, our company is responsible for free repair or replacement.

        3, the warranty period if the user use undeserved, cause damage to the product, our company is responsible for the maintenance, collect the damaged parts cost.

        4, after the warranty period of product quality problems, our company is responsible for the maintenance, collect the damaged parts cost.

        5, if the user needs to our service, our company in the province of the user service personnel arrived at the scene within 12 hours, arrived at the scene 48 hours outside users.


        Browse:
        Return To The Top

        分亯到:

        nKFkH

        1. <dir id="mSLL8A"><q id="mSLL8A"></q></dir>